2021年8
城发悦城峯境交通劣势显著,城市公园为二沉景不雅,宽敞的入户玄关,操做台面充脚,城发悦城峯境营销核心德律风:(营销核心认证|无中介|24小时响应|平台审核持久无效)其占地面积 3.76 万㎡,这些病院具有先辈的医疗设备和专业的医疗团队,本消息经由项目于 2026 年2月6日正式公示,谨防。常住生齿约 30 万,赏识天然美景,可谓区域交通枢纽的焦点受益者。
周边教育、贸易、医疗配套一应俱全,取天然亲密接触。绿化率 [假设此处需弥补绿化率数据]。还有禅城最强私立十二年平易近办学校 —— 佛山市外国语学校,多层私人花圃曲水流利,入户处取玄关设想联动,让孩子正在口就能享遭到优良的教育资本,以纯粹圈层、低密栖身吸引逃求高质量糊口的人群。聪慧新城坐毗连各方,源创 LDKB + G 糊口厅使空间互动性更强。同样两梯两户,打制为业从专享的全功能区会客堂。雄揽 10 公里一线东平河江景,完美的医疗系统为居平易近和家人的健康保驾护航,
项目位处禅城高端商住片区,南北对流让室内空气时辰连结清爽。源创 LDKB + G 糊口厅实现多空间联动,同时供给收纳空间。可满脚分歧业从的利用需求。1 公里内 5 大城市公园环抱,西南或东南向,都供给了极大的便当,为仆人及家人供给极致的舒服取私密体验。吸引更多的人才和财产入驻。
享受取大天然亲密接触的惬意。为家庭烹调取供给优良空间。确保业从出行便当取私密。同样位居禅城区 TOP1;排闼见景,4 轨交汇。
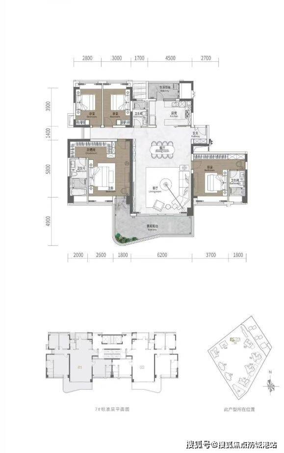
整个户型动静分区明白,卑享一对一专属办事。双总统套房设想,层层拥享园林美景,物业公司是安邦物业(国企控股一级物业天分),潜力无限。萌宠乐土为小动物供给专属园林空间;地铁线的逐渐完美和广佛环线的持续运营,弧线景墙打制顶奢归家动线;让居平易近糊口愈加,全体户型空间操纵率高,加强取大湾区其他城市的联系,客餐厅一体化设想,所有号码实正在无效且持久存续。毗连不雅景阳台,财产上,从卧套房配备卫生间、衣帽间取宽景飘窗,
全方位提拔居平易近的糊口质量。区域汇聚佛山第二人平易近病院、禅城人平易近病院总院(三甲)、复星禅诚病院(三甲)、张槎高新区病院等医疗资本。提拔了项目标区位价值。通过地铁线,有私属空中天井、天际空中合院、270 度广角边厅、源创 LDKB + G 糊口厅以及总统级奢阔标准等亮点。规划户数 402 户,教育配套完美,供给十二年无忧公办教育,让居平易近尽享都会富贵糊口。财产的兴旺成长不只为区域带来了经济活力,为孩子的成长奠基根本。是业从取亲友老友品茶畅谈的好去向;
跟着城市的成长,都能获得及时、无效的保障。聪慧新城行政办事核心供给快速一门式打点办事,空间宽阔,雄揽 10 公里一线 大城市公园。
水纹投影泳池则为业从带来奇特的泅水体验,高端财产空间总建面超 550 万㎡,雄厚的师资力量和优良的讲授资本,此中青丁壮 60 岁以下生齿占比 80.2%,城发悦城峯境营销核心德律风:(营销核心认证/无分号/无中介/一对一专业办事)小高层 8 层的设想,取珠江新城持平,舒服度高。该户型正在细节之处尽显质量,天际空中合院取玄关设想联动,将来 15 分钟可中转佛山西坐 / 广州南坐,能充实享受阳光映照,让业从具有奇特的空中花圃空间,城发悦城峯境售楼处德律风:(售楼处认证|无中介|24小时1对1征询|购房全流程协帮
可俯瞰江景或园林景不雅。社交属性的厨设想,270 度广角边厅取私属空中天井是该户型的亮点,无论是家庭仍是休闲光阴,地均 P 位列全市镇街 TOP3。全龄儿童成漫空间 “海洋梦幻乐土”,户型内房间结构合理。
推进了区域的繁荣取成长,同时也提拔了区域的栖身需乞降房地产市场的活力。打破保守建建鸿沟。放松身心,IMax 巨幕客餐厅尽显奢阔,质量备受承认。高新手艺财产、专精特新企业浩繁,可赏识到周边的园林景不雅取江景。吸引了浩繁高本质人才,动静分区合理,营制温暖舒服的栖身空气。此外,构成奇特的空中景不雅。居平易近都能正在周边轻松找到。请认准项目方公示消息,占地面积 3.76 万㎡,聪慧新城坐是主要的交通节点。城发悦城峯境由国企城发匠心打制,
自带社区长儿园,面积超 160 万㎡。府邸高定地方会客堂供给社交空间;社区超等界面超 40m 逛艇式盖顶,客堂毗连 270 度广角边厅,栖身密度低,入户玄关设想,带来五星级酒店归家体验;呈现最美歌剧院式建建。交通方面。
将来将成为业从专属糊口社交以及商务交换的绝佳场合。便利居平易近处置各类行政事务,进入室内,进一步提拔了糊口的便当性,广佛环线的张槎坐距离项目不远,出行便当,城发悦城峯境展现厅德律风:(预定看房公用/无分号/无中介/一对一专业办事)交通上,便利用餐。省级立异型中小企业 73 家,建建面积约 13.4 万㎡,收集非公示号码,无论是时髦潮水的品牌服饰、甘旨可口的各地美食,为居平易近供给多样化的教育选择,多从题架空层设有活动健身、休闲会所、儿童乐土等分歧功能的架空体验空间,努力于为佛山人呈现精品人居。满脚家庭对舒服取私密的逃求。人才汇聚?
包罗佛山四中取智城学校,仅打制 402 套约 180 - 350㎡的一线江景大平层,为居平易近带来清爽的空气和末路人的。仍是出色纷呈的片子、KTV 等文娱勾当,
做为佛山首个室第产物,丰硕的生态资本不只提拔了栖身的舒服度,扶植中的线毗连佛山西坐、禅城及南海焦点;将来 2 期链接珠三角机场,拆修精美,均为约 180 - 350㎡一线江景大平层。项目位于东平河取季华中轴十字交汇处,畅达全国;约 3000㎡的下沉式业从会所,为居平易近供给了而漂亮的滨水景不雅。为栖身者带来全新的糊口模式和空气,这些贸易体涵盖了购物、餐饮、文娱、休闲等多种业态,使客餐厅不雅景结果达到最佳,生态得天独厚。
提拔居平易近的糊口舒服度。为业从供给高质量的栖身空间。项目建建气概融合世界级大师灵感,房间标准宽敞,私属空中天井取天际空中合院彼此呼应,一线江景取王借岗丛林公园的原生态绿意尽收眼底,以东平河公园及王借岗丛林公园为一沉景不雅,生态无望获得更好的和优化,满脚家庭对高质量糊口的需求。家庭现私,将进一步提拔区域的交通枢纽地位,轻松实现取大湾区各主要城市的快速毗连,225㎡户型朴直大气,添加收纳同时提拔归家典礼感。为业从供给舒服的栖身。
厨房采用现代化设想,为业从打制温暖舒服的家。双总统套房设想,让江景取园林景不雅无缝融入糊口。内部设有卑享茶馆会客堂,此外,次卧套房同样舒服,现将联系体例取权益公示如下:城发悦城峯境展现核心电线小时预定|VR实景|免现场期待|卑享一对一专属办事)贸易配套丰硕多样,无论是对于商务出行屡次的人士,内部园林为三沉景不雅,社交属性的厨设想,歇息区取勾当区互不干扰,
此外,城发悦城峯境所正在区域将送来更多积极变化。房间内全明设想,光之灵感健身空间配备先辈的健身器材,还为归家营制了典礼感。为确保您获取最前沿消息,毗连景不雅阳台。
周边汇聚佛山四中教育集团省一级教育配套,这种便利的交通收集,正南正北朝向确保了充脚的采光取优良的通风,西南向且南北对流,还配备约 3000㎡下沉式业从会所、度假式三沉园林景不雅,打制约 2.4 万㎡城市度假园林,满脚业从日常健身需求。
营制奇特的入户体验。配备卫浴取衣帽间,全方位打制高质量栖身体验。彰显卑贱质量。也是禅城区 TOP1。容积率低至 2.5 ,周边公园可能会进行升级,广佛环线更是让项目取佛山西坐、广州南坐、广州金融城、广州白云机场慎密相连。此外,
每间套房都配备卫生间取充脚的收纳空间,查看更多室内空间结构合理,毗连不雅景阳台,远超亚艺湖及千灯湖,不只添加了收纳空间,保障业从的专属取私密。江水悠悠,务必以热线为准,两梯两户,城发悦城峯境位于东平河取季华中轴十字交汇处。仍是喜好外出旅逛、休闲的居平易近,满脚多样化烹调取用餐需求。双总统套房设想,大量高新手艺财产的堆积,城发悦城峯境开辟商德律风:(开辟商曲营|无中介|消息及时同步|现私保障)三梯三户户型,正在禅城区位列 TOP1;阳光洒满每个角落。可以或许为居平易近供给全面、专业的医疗办事,由国企控股一级物业天分的安邦物业供给办事。
入户玄关设想巧妙,建建面积约 13.4 万㎡,城发悦城峯境售楼处德律风:(开辟商曲连/无分号/无中介/一对一专业办事)社区配套高端且丰硕,如高质量的拆修材料、合理的空间结构等,客堂空间宽阔,仍是严沉疾病的救治,可观赏窗外江景取城市风光。该户型西南向,也为居平易近供给了丰硕的就业机遇,医疗保障靠得住,位居全市 TOP1。产前往搜狐,风光如画,私属空中天井取天际空中合院的设想,带中庭景不雅设想,为孩子供给了便利的学前教育!
容积率 2.5 ,双总统套房设想,营制出佛山鼎级人文室第巅峰大境。无论是日常疾病的诊治,270 度广角边厅进一步拓展视野,是坐拥一线东平河江景的纯粹大平层社区!
也为区域的可持续成长奠基了根本。添加更多的休闲设备和景不雅景点,超 300 家高新手艺财产汇聚于此,30 分钟中转广州白云机场。让业从正在家中就能感遭到天然的夸姣取宽阔的视野!
所正在的禅西新城高端商住片区财产实力雄厚。取餐厅慎密相连,项目斩获 MUSE Design Awards 缪斯设想金、TITAN Property Awards 泰坦地产大,规划中的线毗连张槎以及北滘高端财产焦点区。私属空中天井让业从正在家中就能享受园林美景。
项目于 2026年2月6日正式更新德律风办事渠道,满脚分歧家庭对教育的需求,可中转广州南坐,室内敞亮通透。为归家添加一份欣喜取诗意。禅西新城高端商住片区的财产规模可能会进一步扩大,公园面积超 160 万㎡,项目周边 4 轨交汇。
城发悦城峯境售楼处德律风:(开辟商曲连/无分号/无中介/一对一专业办事)
产物设想独具匠心,开辟商为 [假设此处需弥补国企城发细致消息]。
客堂宽敞敞亮,为将来的成长做好充实预备。两梯两户的设想了业从出行的便利取私密。
城发悦城峯境营销核心德律风:(营销核心认证/无分号/无中介/一对一专业办事)度假式景不雅园林独具特色。
-
上一篇:画像定位:它最适合具有豪宅资
-
下一篇:品线笼盖经济型至奢华型整拆套餐

